30 Nisan 2026, 00:55:55
Dolar 42,2340
Euro 48,8802
Altın 5.629,56
BİST 10.824,63
Adana Adıyaman Afyon Ağrı Aksaray Amasya Ankara Antalya Ardahan Artvin Aydın Balıkesir Bartın Batman Bayburt Bilecik Bingöl Bitlis Bolu Burdur Bursa Çanakkale Çankırı Çorum Denizli Diyarbakır Düzce Edirne Elazığ Erzincan Erzurum Eskişehir Gaziantep Giresun Gümüşhane Hakkari Hatay Iğdır Isparta İstanbul İzmir K.Maraş Karabük Karaman Kars Kastamonu Kayseri Kırıkkale Kırklareli Kırşehir Kilis Kocaeli Konya Kütahya Malatya Manisa Mardin Mersin Muğla Muş Nevşehir Niğde Ordu Osmaniye Rize Sakarya Samsun Siirt Sinop Sivas Şanlıurfa Şırnak Tekirdağ Tokat Trabzon Tunceli Uşak Van Yalova Yozgat Zonguldak
Adana 24°C
Az Bulutlu
Adana
24°C
Az Bulutlu
Cts 24°C
Paz 16°C
Pts 19°C
Sal 20°C

Forum arazisi yine gündeme geldi: Çukurova Belediye Meclis Üyeleri’nin “haysiyet” sınavı!

Forum arazisi yine gündeme geldi: Çukurova Belediye Meclis Üyeleri’nin “haysiyet” sınavı!
6 Mart 2024 11:19
A+
A-

Adana’da Çukurova Belediyesi sınırları içerisinde yer alan, kamuoyunda “Forum arazisi” olarak bilinen arsa için emsal fazlalığı verilerek 120 dairelik rant elde edildiği iddia edildi.

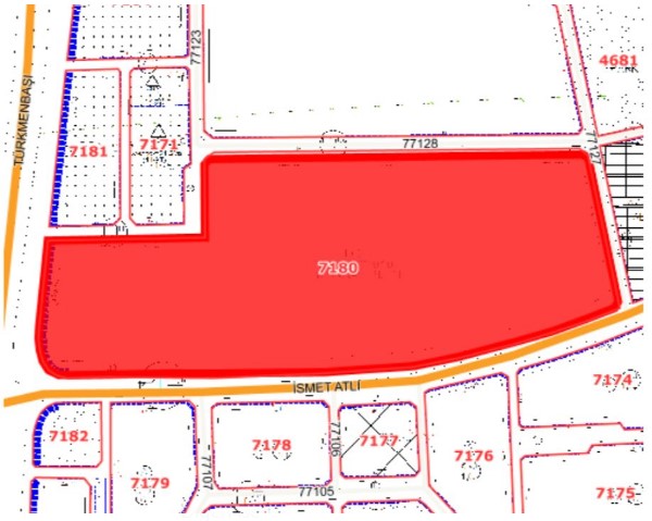
Büyükşehir Belediye Meclisi İmar Komisyonu’nca reddedilen 7180/4  nolu parsel ile ilgili yapılan itirazın görüşülmesi için Çukurova  meclisi toplantıya çağrıldı. Seçimlere  sayılı günler kalmasına rağmen konunun giderayak gündeme getirilmesini Çukurova  halkının ve kamuoyunun takdirine sunuyoruz.

Emsal fazlalığı verilerek milyonlarca liralık haksız kazanç sağlanmasına neden olan olay için yetkililerin halen harekete geçmemesi ise kuşkulara neden olurken akıllara soru işareti düşürdü. Forum arazisi olarak bilinen 7180/4 parseldeki alanda 55040 metrekarelik bölümde yaklaşık 6000 metrekarelik park kesintisi çıkarılınca geriye 49040 metrekarelik alan kalıyor.

9600 METREKARELİK EMSAL FAZLASI VAR

Adanamuhalif.com’un haberine göre, ilk hali ile 55040 metrekarelik alanda yaklaşık 9600 metrekare emsal fazlası var. 80 metrekarelik emsalden burada 120 daire fazladan yapılmış olacak. İddialara göre 51,50 metre yükseklik onaylı yere 80 metre yükseklik verildi. Özetle, bina yüksekliklerinin de düşürülmesi gerekiyor.

İMAR İŞLEMLERİNİN HIZI DİKKAT ÇEKTİ

İleri sürülen iddialara göre, arsada değişiklik işlemleri 1 aydan kısa sürede tamamlandı. 2021 yılı 19 Haziran’da imar durumu için müracaat edilen arsada 24 Haziran 2021 tarihinde imar alındı. 30 Haziran 2021 tarihinde ruhsat için müracaat edildi ve aynı gün ruhsat da alındı. 10 Temmuz 2021 tarihinde ise sözleşme imzalandı.

9600 METREKARE EMSAL FAZLASI VAR

Teknik olarak ilk hali ile 55040*1,6=88064 metrekarelik emsal var. Yaklaşık 6000 metrekarelik park kesintisi çıkınca 49040*1,6=78464 metrekare emsal orta çıkıyor. Yani fazladan yaklaşık 9600 metrekarelik emsal fazlası var.

KAMUOYU ARAZİYİ YAKINDAN TAKİP EDİYOR

Önceki dönemde forum arazisine 15 bloklu lüks konut ve mini AVM projesi (konut zemin katları) uygulanacaktı. Burası zaten imarda konut alanı olarak yer alırken, AVM yapılmak istenmiş, 2016 yılında belediye meclisinde Carrefour ve forum AVM için olur verilmişti. Belediyeye soruşturma açılınca her 2 proje geri çekilerek iptal edilmişti.

PROJE DEĞİŞİKLİKLERİ BELEDİYE MECLİSİNDEN GEÇTİ

Projeyi yapan firmanın isteği olan değişiklerin Çukurova Beldiye Meclisinden geçtiği öğrenildi.Çukurova belediyesinin kabul ettiği değişikliklerin onaylanması için Adana Büyükşehir belediye Meclisi imar Komisyonu ve belediye Meclisi kararı gerekiyor.

Büyükşehir Belediye meclis üyelerinin bu konuda nasıl bir tavrı takınacağı şimdiden tartışılmaya başlandı. (Kaynak: kucuksaat.com)

YORUMLAR

Henüz yorum yapılmamış. İlk yorumu yukarıdaki form aracılığıyla siz yapabilirsiniz.